Proyecto Llave en Mano para Logística y Almacenamiento

Innovador Proyecto Llave en Mano en Pinto

Solución Integral para tus necesidades logísticas en Pinto, Madrid

Llamar a Napisa

Solicitar Información

Más información

Detalles de la promoción

  • Localización: Pinto, Madrid
  • Superficie: 10.576m2
  • Precio: 12.524.749€

Información

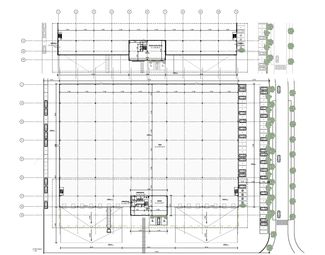
Presentamos nuestro innovador proyecto "Llave en Mano", una solución integral para tus necesidades logísticas. Con un costo total de 12.524.749 €, esta oferta incluye una nave con características excepcionales, diseñada para potenciar la eficiencia operativa y brindar un entorno funcional y moderno.

Características Destacadas:

  • Superficie Total: 10.576,79 m2
  • Parcela: 19.095 m2
  • Almacén: 9.060,85 m2 con 14 muelles para tráileres y 2 portones de acceso
  • Oficinas: 1.515,94 m2, distribuidas en planta baja (313,75 m2) y planta primera (1.202,19 m2)

Opción de Adquisición de Suelo:

Ofrecemos la posibilidad de adquirir únicamente el suelo por 4.964.939 €, brindándote flexibilidad para personalizar tu inversión según tus necesidades específicas.

En resumen, el proyecto "Llave en Mano" es una oportunidad única para adquirir una instalación logística de vanguardia, diseñada para optimizar la eficiencia y adaptarse a las demandas cambiantes de tu negocio. Estamos comprometidos a ofrecer soluciones integrales que impulsen tu éxito empresarial.

¡Contáctanos para obtener más detalles o discutir cómo adaptar este proyecto a tus requerimientos particulares!

¿Tienes alguna duda? ¡Escríbenos y te ayudaremos!

Más de 30 años de experiencia
Contacta con Napisa o llama al 915 06 03 61
Oficina central
Dirección

C/ Alcalde Ángel Arroyo 4-6
28904 Getafe (Madrid)

Información

915 06 03 61 Lunes - Jueves, de 9:00 a 18:30 h
Viernes, de 9:00 a 15:00 h